マンション
Alivis新町
- 画像
- パノラマ
- 動画
- マップ
物件概要
| 物件種別 | マンション | ||||
|---|---|---|---|---|---|
| 物件名 | Alivis新町 | ||||
| 所在地 | 大阪府大阪市西区新町4丁目 | ||||
| 交通機関 |
OsakaMetro長堀鶴見緑地線 西長堀駅 徒歩5分 OsakaMetro千日前線 西長堀駅 徒歩5分 OsakaMetro中央線 阿波座駅 徒歩7分 OsakaMetro千日前線 阿波座駅 徒歩7分 |
||||
| 賃料 | 11万円 | 管理費/共益費 | 10,000円 | ||
| 敷金/保証金 | 無 | 礼金 | 無 | ||
| 敷引/償却 | - | 更新区分 | 有:更新料1ヶ月(新賃料) | ||
| 保険料 | 18,000円/2年 | 保証人 | 指定なし | ||
| 保証会社 |
必加入 / その他 / 初回保証料:- / 月額保証料:- 備考:ジェイリース 【JWF 保なし 住居 30】初回保証料30%・更新料1万円/年、口振手数料330円(税込) |
||||
| 築年月 | 2026年1月(新築) | 総戸数 | 32戸 | ||
| 所在階/階建 | 2階/9階建 | 構造 | RC | ||
| エネルギー消費性能 | - | 断熱性能 | - | ||
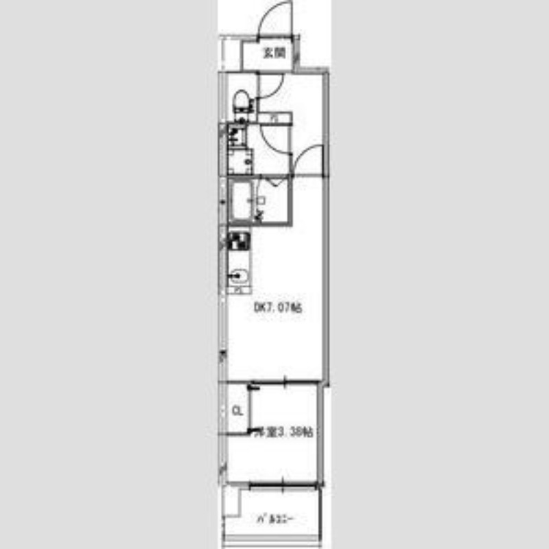
| 目安光熱費 | - | 間取り | 1DK | ||
| 間取り詳細 | DK7.07 洋室3.38 | 専有面積 | 28.25㎡ | ||
| 契約形態 | 普通契約 | 入居可能日 | 即日 | ||
| 駐車場 | 無 | 取引態様 | 先物 | ||
| 備考 | |||||
- 情報登録日:2026/03/06
- 情報更新日:2026/03/06
- 次回更新予定日:2026/03/20
設備・特徴
| バス・トイレ | バス・トイレ:別室、浴槽、シャワー、浴室乾燥機、温水洗浄便座、暖房便座、洗面台、独立洗面台、洗面所にドア、脱衣所、給湯、3点給湯、室内洗濯機置き場 | ||
|---|---|---|---|
| キッチン | システムキッチン、独立キッチン、2口コンロ、ガスコンロ:都市ガス、コンロ設置済 | ||
| 設備・サービス | 防犯カメラ、宅配ボックス、集合ポスト、24Hゴミ出し可、駐輪場、バイク置き場、TVモニター付きインターホン、オートロック、モニタ付オートロック、ディンプルキー、照明器具、全室照明付、ベランダ・バルコニー、クローゼット、下駄箱、天井高下駄箱、収納スペース、全居室収納、エアコン、エアコン1台、冷房、24H換気システム、CATV、BS、CS、光ファイバー、LAN、無線LAN、ネット専用回線、その他インターネット、インターネット使用料無料 | ||
| その他・特徴 | 駅まで平坦、分譲タイプ、IT重説 対応物件、オンライン内見可、オンライン相談可、ペット相談、小型犬可、ネコ可、フローリング、全居室フローリング、全居室マルチメディアコンセント、公共下水、公営水道、南向き、都市ガス | ||
周辺情報
| 周辺施設 |
【スーパー】阪急オアシス新町店:195m 【スーパー】万代フレスポ阿波座店:433m 【中学校】大阪市立西中学校:1010m 【小学校】大阪市立明治小学校分校:795m 【小学校】大阪市立堀江小学校:813m 【幼稚園・保育園】大阪市立梅本保育所:472m 【幼稚園・保育園】大阪市立堀江幼稚園:713m 【病院】中央急病診療所:96m 【病院】日生病院:429m 【郵便局】大阪本田郵便局:381m 【役所】西区役所:222m 【銀行】三井住友銀行 立売堀支店:608m |
||
|---|---|---|---|
部屋一覧
| 間取り図 | 所在階 | 間取り/専有面積 | 賃料 | 敷金(保証金)/礼金 | 管理費/共益費 | お気に入り | ||
|---|---|---|---|---|---|---|---|---|
|
2階 | 1DK 29.44㎡ | 10.6万円 |
無
無
|
10,000円 |
追加
|
詳細 お問い合わせ | |
|
2階 | 1DK 28.25㎡ | 11万円 |
無
無
|
10,000円 |
追加
|
詳細 お問い合わせ | |
|
2階 | 1DK 29.44㎡ | 10.85万円 |
無
無
|
10,000円 |
追加
|
詳細 お問い合わせ | |
|
4階 | 1DK 29.44㎡ | 10.95万円 |
無
無
|
10,000円 |
追加
|
詳細 お問い合わせ | |
|
4階 | 1DK 28.25㎡ | 11.15万円 |
無
無
|
10,000円 |
追加
|
詳細 お問い合わせ | |
|
4階 | 1DK 28.25㎡ | 11.15万円 |
無
無
|
10,000円 |
追加
|
詳細 お問い合わせ | |
|
4階 | 1DK 29.44㎡ | 11.1万円 |
無
無
|
10,000円 |
追加
|
詳細 お問い合わせ | |
|
6階 | 1DK 29.44㎡ | 11.1万円 |
無
無
|
10,000円 |
追加
|
詳細 お問い合わせ | |
|
6階 | 1DK 28.25㎡ | 11.1万円 |
無
無
|
10,000円 |
追加
|
詳細 お問い合わせ | |
|
6階 | 1DK 28.25㎡ | 11.1万円 |
無
無
|
10,000円 |
追加
|
詳細 お問い合わせ | |
|
6階 | 1DK 29.44㎡ | 11.15万円 |
無
無
|
10,000円 |
追加
|
詳細 お問い合わせ | |
|
8階 | 1DK 29.44㎡ | 11.2万円 |
無
無
|
10,000円 |
追加
|
詳細 お問い合わせ | |
|
8階 | 1DK 28.25㎡ | 11.15万円 |
無
無
|
10,000円 |
追加
|
詳細 お問い合わせ | |
|
8階 | 1DK 28.25㎡ | 11.15万円 |
無
無
|
10,000円 |
追加
|
詳細 お問い合わせ | |
|
8階 | 1DK 29.44㎡ | 11.2万円 |
無
無
|
10,000円 |
追加
|
詳細 お問い合わせ |
全部屋情報を表示する(15部屋)
お問い合わせ
UTクリエイト本店
所在地/大阪府大阪市中央区南船場4-12-8 関西心斎橋ビル4F
営業時間/10:00~19:00 定休日/水曜日
お問い合わせ番号:13951337
06-6125-5364



